Omschrijving
Moderne villa met panoramisch uitzicht op de zee en de Peñón de Ifach in Calpe.
Wij presenteren deze prachtige villa gelegen in de prestigieuze woonwijk Kalmias, binnen de urbanisatie Cumbre del Sol, tussen Jávea en Moraira, in de gemeente Benitachell. Een exclusieve omgeving die de rust van de natuur combineert met de nabijheid van de beste stranden van de Costa Blanca.
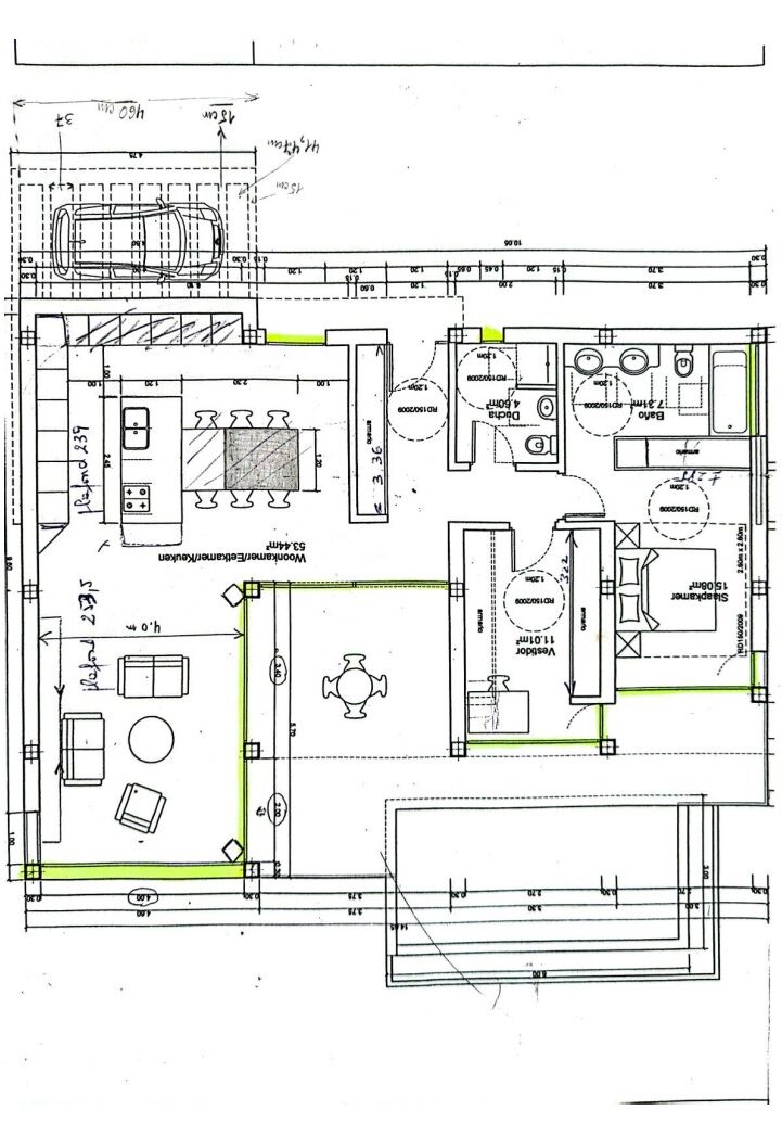
De woning heeft een bebouwde oppervlakte van 282 m² op een royaal perceel van 1.385 m², en biedt voldoende binnen- en buitenruimtes om te genieten van de mediterrane levensstijl. De villa is verdeeld over twee verdiepingen:
Hoofdverdieping: volledig afgewerkt, met twee tweepersoonsslaapkamers, een complete badkamer, een gastentoilet, open keuken en een ruime woon/eetkamer die uitkomt op een overdekt terras en het zwembad, waar u kunt ontspannen terwijl u uitkijkt over zee.Halve kelderverdieping: biedt een groot potentieel om het pand uit te breiden, zodat u de ruimte kunt aanpassen aan uw behoeften, of het nu is om extra slaapkamers, een fitnessruimte of een bioscoopzaal toe te voegen.De villa is uitgerust met vloerverwarming en gekanaliseerde airconditioning, zodat u het hele jaar door verzekerd bent van comfort.
Als u op zoek bent naar een woning die elegantie, comfort en een spectaculair uitzicht combineert, dan is deze woning een uitstekende keuze. Aarzel niet om contact met ons op te nemen voor meer informatie of om een bezichtiging te regelen. Wij nodigen u uit om uw nieuwe thuis in Cumbre del Sol te ontdekken!
Woonwijk Kalmias: Exclusieve villa's met panoramisch uitzicht op zee en de bergen
De urbanisatie Kalmias is een uitstekende ontwikkeling van villa's bestaande uit 189 percelen, variërend in grootte van 750 m² tot 1.200 m², gelegen in de prestigieuze urbanisatie Cumbre del Sol in Benitachell (Alicante). Een bevoorrechte enclave waar bijna alle percelen een spectaculair uitzicht bieden op de Middellandse Zee, de vallei van Moraira met de iconische Ifach-rots van Calpe als achtergrond, en de bergen van de Sierra de Bernia.
Oriëntatie en ligging
De percelen in de woonwijk Kalmias liggen op het zuiden en zuidwesten, wat een uitstekende helderheid garandeert en u laat genieten van adembenemende zonsondergangen. Dit exclusieve gebied ligt aan de zuidelijke ingang van de urbanisatie Cumbre del Sol, grenzend aan de woonwijken Jazmines en Lirios.
Afstanden naar nabijgelegen voorzieningen
1 tot 3 km:Dreamsea Mediterranean Camp met bar en restaurant.Toegang tot het strand van Morach, Cala de los Tiestos en Cala Llebeig.Lady Elizabeth International School, bekend om haar uitstekende onderwijs.Mercadona supermarkt en een manege. 4 tot 5 km afstand:Winkelcentrum Adelfas, met supermarkt Pepe La Sal, kapper, onderhoudsbureau en verhuur.La Cumbre restaurant, apotheek en een sportcentrum met paddle- en tennisbanen.Mas y Mas supermarkt en het stadscentrum van Benitachell.6 tot 7 km:Het charmante centrum van Moraira en het populaire Portet strand.Jávea golfbaan, ideaal voor golfliefhebbers.12 km:Het beroemde Arenal-strand van Jávea, met een ruim aanbod aan bars, restaurants en vrijetijdsactiviteiten.Leef in een droomomgeving!
De woonwijk Kalmias biedt de perfecte combinatie van rust, natuurlijke schoonheid en nabijheid van diensten en activiteiten. Neem contact met ons op voor meer informatie over de beschikbare percelen of om een bezichtiging te regelen - dit is het perfecte moment om uw droomhuis te bouwen in de exclusieve urbanisatie Cumbre del Sol!
Moderne villa met panoramisch uitzicht op de zee en de Peñón de Ifach in Calpe.
Wij presenteren deze prachtige villa gelegen in de prestigieuze woonwijk Kalmias, binnen de urbanisatie Cumbre del Sol, tussen Jávea en Moraira, in de gemeente Benitachell. Een exclusieve omgeving die de rust van de natuur combineert met de nabijheid van de beste stranden van de Costa Blanca.
De woning heeft een bebouwde oppervlakte van 282 m² op een royaal perceel van 1.385 m², en biedt voldoende binnen- en buitenruimtes om te genieten van de mediterrane levensstijl. De villa is verdeeld over twee verdiepingen:
Hoofdverdieping: volledig afgewerkt, met twee tweepersoonsslaapkamers, een complete badkamer, een gastentoilet, open keuken en een ruime woon/eetkamer die uitkomt op een overdekt terras en het zwembad, waar u kunt ontspannen terwijl u uitkijkt over zee.Halve kelderverdieping: biedt een groot potentieel om het pand uit te breiden, zodat u de ruimte kunt aanpassen aan uw behoeften, of het nu is om extra slaapkamers, een fitnessruimte of een bioscoopzaal toe te voegen.De villa is uitgerust met vloerverwarming en gekanaliseerde airconditioning, zodat u het hele jaar door verzekerd bent van comfort.
Als u op zoek bent naar een woning die elegantie, comfort en een spectaculair uitzicht combineert, dan is deze woning een uitstekende keuze. Aarzel niet om contact met ons op te nemen voor meer informatie of om een bezichtiging te regelen. Wij nodigen u uit om uw nieuwe thuis in Cumbre del Sol te ontdekken!
Woonwijk Kalmias: Exclusieve villa's met panoramisch uitzicht op zee en de bergen
De urbanisatie Kalmias is een uitstekende ontwikkeling van villa's bestaande uit 189 percelen, variërend in grootte van 750 m² tot 1.200 m², gelegen in de prestigieuze urbanisatie Cumbre del Sol in Benitachell (Alicante). Een bevoorrechte enclave waar bijna alle percelen een spectaculair uitzicht bieden op de Middellandse Zee, de vallei van Moraira met de iconische Ifach-rots van Calpe als achtergrond, en de bergen van de Sierra de Bernia.
Oriëntatie en ligging
De percelen in de woonwijk Kalmias liggen op het zuiden en zuidwesten, wat een uitstekende helderheid garandeert en u laat genieten van adembenemende zonsondergangen. Dit exclusieve gebied ligt aan de zuidelijke ingang van de urbanisatie Cumbre del Sol, grenzend aan de woonwijken Jazmines en Lirios.
Afstanden naar nabijgelegen voorzieningen
1 tot 3 km:Dreamsea Mediterranean Camp met bar en restaurant.Toegang tot het strand van Morach, Cala de los Tiestos en Cala Llebeig.Lady Elizabeth International School, bekend om haar uitstekende onderwijs.Mercadona supermarkt en een manege. 4 tot 5 km afstand:Winkelcentrum Adelfas, met supermarkt Pepe La Sal, kapper, onderhoudsbureau en verhuur.La Cumbre restaurant, apotheek en een sportcentrum met paddle- en tennisbanen.Mas y Mas supermarkt en het stadscentrum van Benitachell.6 tot 7 km:Het charmante centrum van Moraira en het populaire Portet strand.Jávea golfbaan, ideaal voor golfliefhebbers.12 km:Het beroemde Arenal-strand van Jávea, met een ruim aanbod aan bars, restaurants en vrijetijdsactiviteiten.Leef in een droomomgeving!
De woonwijk Kalmias biedt de perfecte combinatie van rust, natuurlijke schoonheid en nabijheid van diensten en activiteiten. Neem contact met ons op voor meer informatie over de beschikbare percelen of om een bezichtiging te regelen - dit is het perfecte moment om uw droomhuis te bouwen in de exclusieve urbanisatie Cumbre del Sol!
Eigenschappen
Aankoopbegeleiding Spanje
Wij verzorgen voor u het gehele aankoopproces van het allereerste begin tot aan de ondertekening van de eigendomsakte bij de notaris.
- geen taalbarrière
- snel schakelen, korte lijnen
- wij verzorgen het contact met alle betrokken partijen om alles in goede banen te leiden
- wij schermen alle agents af zodat u enkel met 1 partij te maken heeft
- wij begeleiden het juridische - en fiscale traject in samenwerking met andere professionals
- indien gewenst kunnen wij voor u voor een bepaald deel de financiering in orde maken
Benitachell, Kalmias en omgeving
De regio Alicante (Alacant), gelegen aan de zonnige Costa Blanca, is een populaire bestemming dankzij haar prachtige stranden, mediterrane klimaat en rijke cultuur. Van de levendige stad Alicante met het indrukwekkende Castillo de Santa Bárbara tot de sfeervolle badplaatsen zoals Benidorm, Jávea en Calpe, er is voor iedereen wat te ontdekken. Natuurliefhebbers kunnen genieten van wandelroutes in de Sierra de Aitana of een boottocht maken naar het idyllische Tabarca-eiland. Bovendien staat de regio bekend om haar kleurrijke festivals, zoals Las Hogueras de San Juan, waar spectaculaire vuren en feesten de straten verlichten.
Naast zon en cultuur biedt Alacant ook een verrukkelijke gastronomie. Proef lokale specialiteiten zoals arroz a banda (rijstgerecht met zeevruchten) en de beroemde Turrón de Jijona. De combinatie van culinaire tradities, een bruisend stadsleven en een ontspannen mediterrane sfeer maakt Alacant een perfecte bestemming om te wonen of te bezoeken. Of je nu komt voor ontspanning aan het strand, avontuur in de natuur of een duik in de geschiedenis en gastronomie, deze regio heeft alles te bieden!